ИП Ненашев Андрей Александрович

Объект 22-26 (Частный дом)

Продажа, Частный дом, 2 комнаты, 70.2 кв.м., Мыски, 2 150 000 р.

Местоположение

Мыски

Число комнат

2 комнаты

Этажи

1 эт.

Размеры

Площадь, кв.м.:
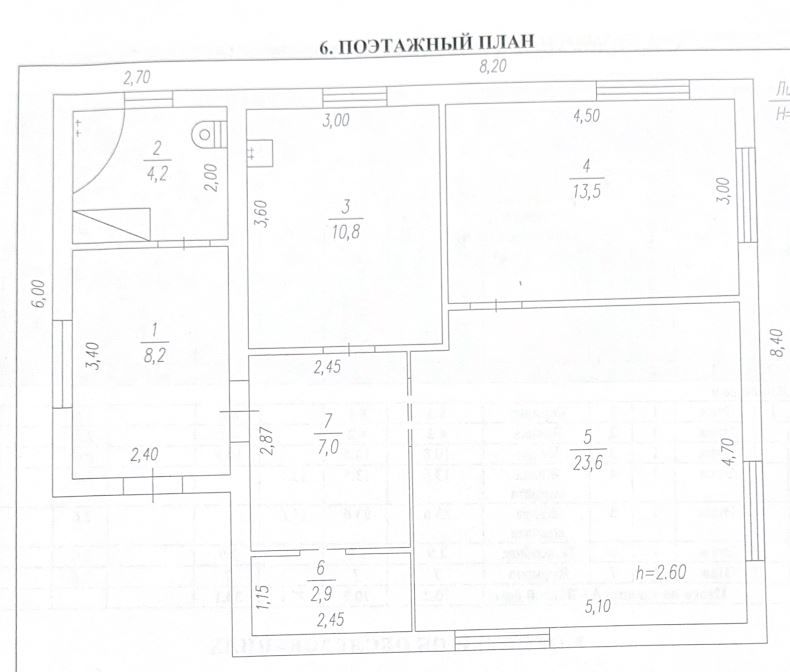
    Общая:70.2
    Жилая:37.1
    Кухня:10.8
Земельный участок:
    Площадь:14.4 сот.

Технические характеристики

Коммуникации:интернет, спутниковое ТВ
    Количество санузлов в доме:1
Теплоснабжение:Электричество, Печно-водяное
Водоснабжение:Центральное, только холодная вода
Канализация:Выгребная яма
Конструкция здания:
    Материал наружных стен:Дерево
    Материал кровли:Металлочерепица
    Тип кровли:Двускатная
    Фундамент:Ленточный
Состояние объекта:
    Год постройки:2012
    Состояние:Улучшенная отделка

Финансовые условия:

Цена:2 150 000 р.

Комментарий

Внимание! Просторный дом 2013 года постройки ждёт своего нового хозяина! Срочно. Проходя через калитку, Вас встречает деревянный настил, который провожает до самого крыльца дома. Поднимаясь по ступенькам, перед Вами открывается просторная застеклённая откатными окнами веранда. Открывая входную дверь, Вы попадаете в прихожую, в которой располагается котел отопления, вход в совмещённый санузел и лестница на второй этаж, а так же дверной проем в хол. Из просторного хола имеется выход в кухонное помещение 10 м2, гардеробную 3 м2 и большую светлую гостиную 23,6 м2. Проходя через гостиную, перед Вами откроется дверь в отдельную комнату 13,5 м2. Общая площадь дома – 70.2 м2 Все окна в доме пластиковые трёхкамерные. По дому проходят трубы с водяным отоплением от котла (угольного и электрического с возможностью удалённого управления им). В холле имеется выход в сухое подвальное помещение с овощехранилищем. Поднимаясь по удобной лестнице, Вы попадаете на второй этаж, который можно до обустроить под свой вкус и цвет. Дом из бруса, обшит сайдингом. На участке так же имеется жаркая баня из бруса с предбанником, в котором приятно провести время за кружкой благородного напитка. Для нового хозяина есть кирпичное строение, в котором будет храниться Ваш весь необходимый инвентарь, а так же останется ещё место для реализации всех Ваших желаний. Чистая продажа! Все подробности по телефону и при показе на объекте.

Контактная информация

Агент: Алексей Фиськов

Телефон: 89134391611, 89069813149

Эл. почта: 904374@mail.ru

Обновлено: 03.10.2025

Просмотров: 15

←Предыдущий объект Следующий объект→